聯系人:王經理
手機:18738599917(微信同號)
電話:0373-8955667
郵箱:hnysqzsb@126.com
地址:河南省長垣縣起重工業園區

聯系方式
contact us聯系人:王經理
手機:18738599917(微信同號)
電話:0373-8955667
郵箱:hnysqzsb@126.com
地址:河南省長垣縣起重工業園區
【聯系電話】18790530797
20/5噸電動葫蘆雙梁橋式起重機是指起重量為20/5噸,以電動葫蘆作為起升機構的雙梁橋式起重機,該型雙梁行車俗稱葫蘆雙,小編為大家介紹下20/5噸葫蘆雙橋式起重機技術參數。
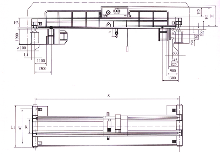
電動葫蘆雙梁橋式起重機結構圖:

20/5噸電動葫蘆雙梁橋式起重機技術參數
起重量 | T | 20/5 | ||||||||||||
跨度 | m | 10.5 | 13.5 | 16.5 | 19.5 | 22.5 | ||||||||
提升 | 6;8;9;12 | |||||||||||||
高度電源 | 三相交流380V 50HZ | |||||||||||||
大車運行機構 | 地面 | 速度 | m/min | 28.72 | ||||||||||
電動機 | 型號 | YSE90L-4D | ||||||||||||
功率 | kw | 2*1.5 | 4*1.5 | |||||||||||
操縱室 | 速度 | m/min | 40 | |||||||||||
電動機 | 型號 | YSE90L-4D | ||||||||||||
功率 | kw | 2*1.5 | 4*1.5 | |||||||||||
小車 | 葫蘆型號 | m/min | 6 | 6 | ||||||||||
起升速度 | 3.5/8 | |||||||||||||
運行速度 | 17 | |||||||||||||
車輪直徑 | mm | 300 | ||||||||||||
軌道面寬 | 51-70 | |||||||||||||
最大輪壓 | KN | 13655 | 14427 | 15355 | 16044 | 17003 | ||||||||
總重量 | T | 8.4 | 10.6 | 14.2 | 16.8 | 20.9 | ||||||||
主要尺寸 | ||||||||||||||
K | 1500(H-6m,9m);1800(H-6m,9m) | |||||||||||||
W | 3000(h-6m,9m);3500(H-12m) | |||||||||||||
L | 3550(H-6m,9m);4050(H-12m) | |||||||||||||
L1 | 141 | |||||||||||||
H | 2157 | 2304 | 2408 | 2508 | 2658 | |||||||||
H1 | 1917 | 2067 | 2171 | 2271 | 2421 | |||||||||
H2 | ||||||||||||||
H3 | 989 | 1139 | 1243 | 1343 | 1493 | |||||||||
文章來源:http://m.oilyd.cn

聯系人:王經理 18738599917(微信同號)
電話:0373-8955667
郵箱:hnysqzsb@126.com
總部:河南省長垣縣起重工業園區
福建地址:福建省福州市倉山區螺洲鎮杜園路18號海峽西岸國際物流商貿城